Skip to main content

Eastfields, Merton:

transforming a 1970s estate into a green and connected neighbourhood

Type:
Masterplanning
Client:
Clarion Housing Group
Location:
Merton, London
Project status:
Planning
Awards:
AJ120 Architectural Collaboration of the Year 2015, Shortlisted

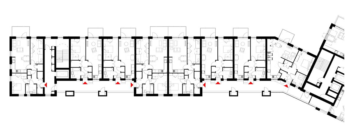
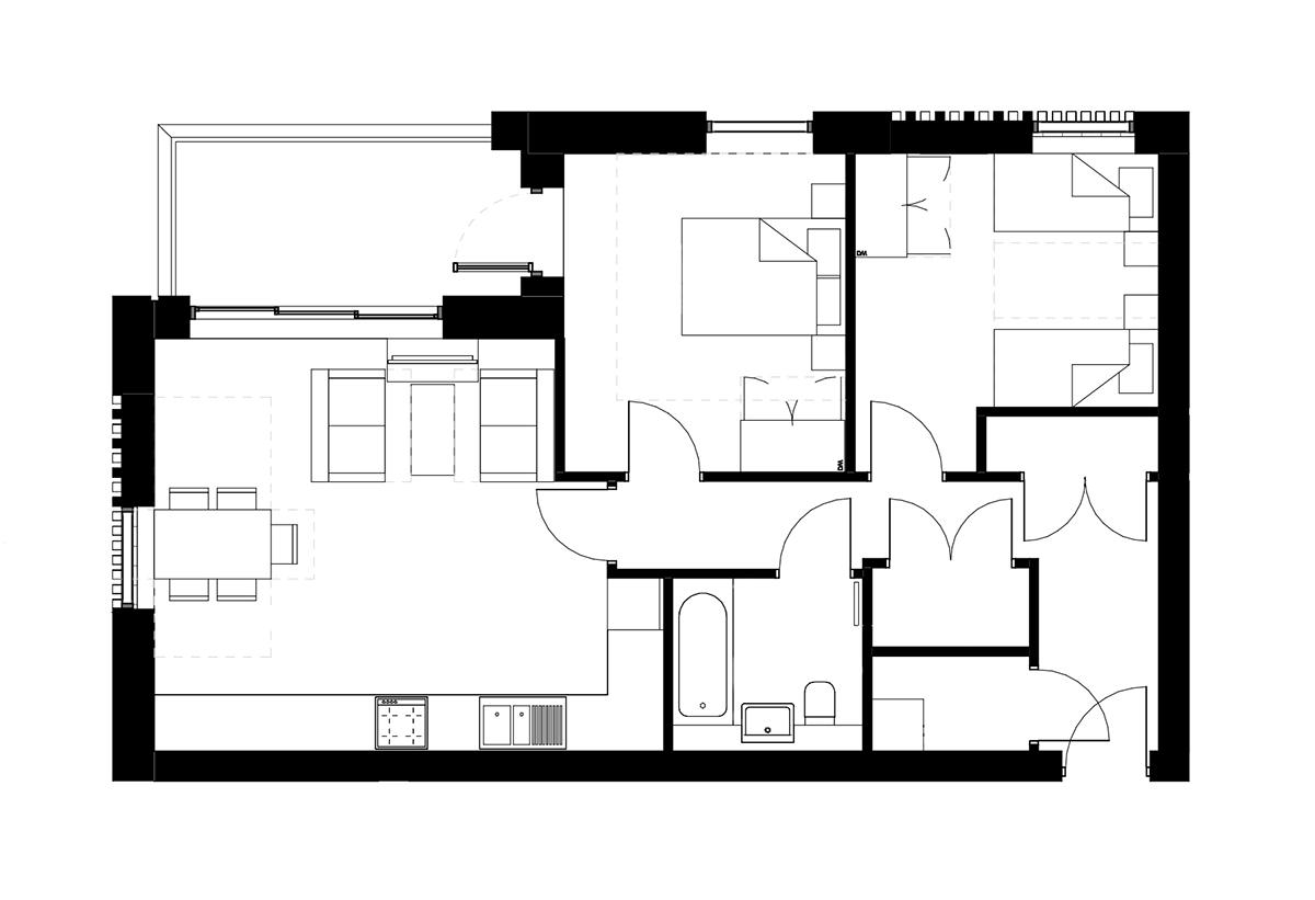
As part of a team of three architectural practices, Proctor & Matthews are collaborating with Levitt Bernstein Associates and Cullinan Studio on the regeneration of the Eastfield Estate, located to the north-east of Mitcham Town Centre in the London Borough of Merton. This ambitious project will deliver a comprehensive masterplan for a mixed-tenure neighbourhood, building on the positive attributes of the existing estate while significantly raising the quality of homes, the public realm, and connections with surrounding communities.

Originally constructed in the early 1970s, the Eastfield Estate has experienced a legacy of under-investment and the challenges associated with system-built construction. The masterplan proposes the creation of up to 850 contemporary, high-quality homes, set within a cohesive, landscape-rich urban environment.

Rooted in an understanding of place and community, the masterplan is structured around three distinct character areas. A network of mews streets, domestic in scale and suburban in character, provides the majority of of family housing. Building heights rise towards the centrally located ‘green heart’—a revitalised public open space that retains many of the existing mature trees, ensuring continuity of landscape character while enhancing security, visibility, and everyday usability. Along the northern edge, a series of more robust, larger-scale buildings help define the new neighbourhood’s skyline and reinforce its urban edge.

A carefully considered public realm strategy introduces new social spaces, civic squares, and pedestrian-priority streets to foster walkability and cycling. Smaller neighbourhood courtyards and shared landscaped areas soften parking provision and frame active street frontages, reinforcing a sense of community and belonging throughout the development.

 
Open House Architectural Collaboration video produced by Levitt Bernstein